20 Woodland Dr unit 379, Lowell, MA 01852
Toggle Navigation
Images
Videos
Floor Plans
Map
20 Woodland Dr unit 379
Lowell, MA 01852
Scroll to Content
Images
Slideshow
Photo Grid
Hide
Previous
Next
Show more
Videos
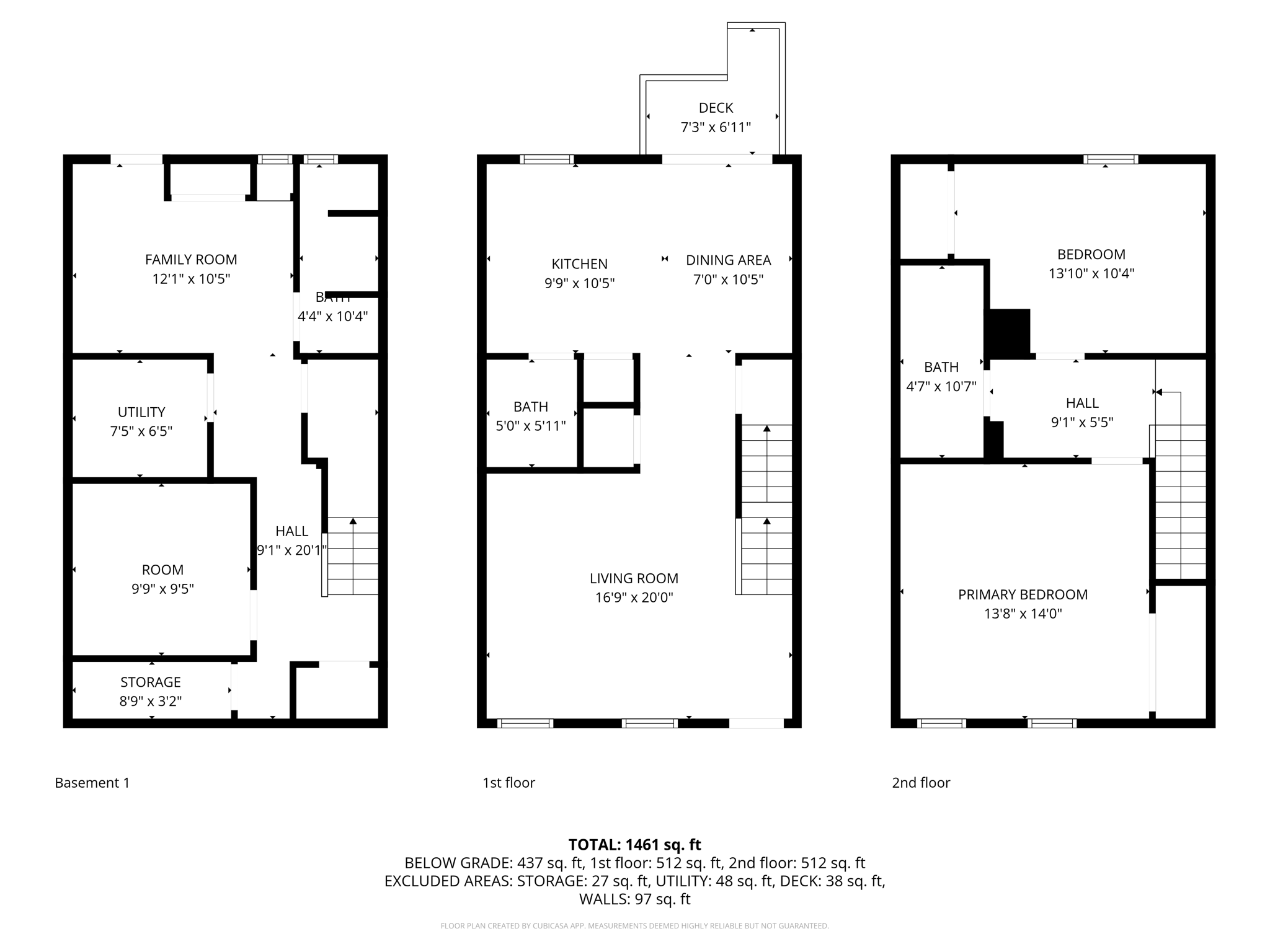
Floor Plans
Slideshow
Photo Grid
Hide
Previous
Next